Описание стойки СК 26.3-2.3
Стойка (СК 26.3-2.3) применяется для устройства опор контактной сети железных дорог, трамвайных и троллейбусных линий, а также других инженерных сооружений. Изделие изготавливается компанией ГК "БЛОК", которая специализируется на производстве и поставке железобетонных изделий в Москве, с использованием высокопрочного бетона класса B40 и армирования стальной арматурой, что обеспечивает её прочность, устойчивость к нагрузкам и долговечность.
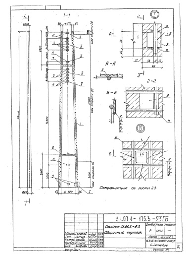
Нормативный документ: Серия 3.407.1-175 в.3.
Применение стойки СК 26.3-2.3
Стойка СК 26.3-2.3 используется для создания надёжных опор контактной сети, обеспечивающих безопасность, функциональность и долговечность объектов железнодорожной и городской инфраструктуры. Она служит важной частью системы, воспринимающей значительные механические нагрузки и воздействия окружающей среды. Для монтажа могут применяться дополнительные элементы: закладные детали, анкерные болты и другие комплектующие.
Типы стоек
Железобетонные стойки подразделяются на несколько типов в зависимости от назначения и конструкции:
- СК: стойка контактной сети;
- СКУ: стойка усиленная;
- СКД: стойка доборная;
- СКК: стойка комбинированная.
Размеры зависят от типа: длина 26000–26100 мм, ширина 650–660 мм, высота 650–660 мм.
Основные параметры, размеры и характеристики
- Длина L, мм: 26000
- Ширина b, мм: 650
- Высота h, мм: 650
- Масса, тонн: 5.932
- Объем бетона, м³: 2.15
- Класс бетона: B40 (марка М500)
- Геометрический объем, м³: 10.985
- Сталь, кг: 556.8
Закладные элементы
- Закладная 1: Каркас КП23
- Закладная 2: Деталь Б228
- Закладная 3: Деталь Б229
- Закладная 4: Деталь Б230
Дополнительные характеристики
- Марка по морозостойкости: F200–F300;
- Марка по водонепроницаемости: W8–W12;
- Технология изготовления: формование с использованием высокопрочного бетона.
Нормы загрузки
- Норма загрузки в автотранспорт 20 т, шт: 3 (при наличии специального оборудования).
Расшифровка маркировки СК 26.3-2.3
Маркировка "СК 26.3-2.3" содержит следующую информацию:
- СК – стойка контактной сети;
- 26 – условная длина изделия в дециметрах (26000 мм);
- 3 – условное обозначение поперечного сечения (650×650 мм);
- 2.3 – вариант исполнения или расчетная нагрузка.
Условия транспортировки и хранения
Стойки СК 26.3-2.3 перевозятся автомобильным или железнодорожным транспортом с использованием специальных захватных устройств (строп). Хранение осуществляется на ровных площадках с твердым покрытием. Стойки устанавливаются вертикально или горизонтально в зависимости от условий. Для предотвращения повреждений между изделиями устанавливаются деревянные прокладки.
Контроль качества стойки СК 26.3-2.3
Каждая стойка СК 26.3-2.3 проходит многоступенчатый контроль качества. Проверяются:
- прочность бетона (не ниже класса B40);
- соответствие геометрических размеров проектным данным;
- морозостойкость и водонепроницаемость бетона;
- точность расположения закладных элементов;
- отсутствие трещин, сколов и других дефектов.
Заключение
Стойка СК 26.3-2.3 – это надежный и долговечный элемент для устройства опор контактной сети. Благодаря использованию качественных материалов и современных технологий производства, она обеспечивает прочность, устойчивость и долговечность конструкций. Для заказа качественных железобетонных изделий обращайтесь к профессионалам своего дела – компании ГК "БЛОК".
Смотрите также:
| Варианты написания товара | 
|---|
| Стойка СК 26.3-2.3 | 
| СК 26.3-2.3 стойка | 
| Стойка СК 26.3-2.3 Серия 3.407.1-175 в.3 | 
| СК 26.3-2.3 Серия 3.407.1-175 в.3 | 
| СК 26.3-2.3 | 
| Стойка СК 26.3-2.3 ГОСТ | 
| СК 26.3-2.3 ГОСТ | 
| 
											ГОСТ/Серия
																					 | Серия 3.407.1-175 в.3 | 
| 
											Длина, мм
																					 | 26000 | 
| 
											Ширина, мм
																					 | 650 | 
| 
											Высота, мм
																					 | 650 | 
| 
											Масса, тонн
																					 | 5.932 | 
| 
											Объем бетона, куб.м
																					 | 2.15 | 
| 
											Класс бетона
																					 | В40 | 
| 
											Геометрический объем, м.куб
																					 | 10.985 | 
| 
											Сталь, кг
																					 | 556.8 | 
| 
											Закладная 1
																					 | Каркас КП23 | 
| 
											Закладная 2
																					 | Деталь Б228 | 
| 
											Закладная 3
																					 | Деталь Б229 | 
| 
											Закладная 4
																					 | Деталь Б230 | 
Как купить
Процесс покупки железобетонных изделий у нас прост и удобен. Следуйте этим шагам:
- Выбор продукции: Ознакомьтесь с нашим ассортиментом и выберите необходимые железобетонные изделия.
- Консультация: Свяжитесь с нашим менеджером для получения консультации по выбору продукции и уточнения всех деталей. Вы можете позвонить нам или написать на электронную почту.
- Оформление заказа: После согласования всех деталей оформите заказ. Менеджер поможет вам заполнить все необходимые документы.
- Согласование доставки: После оформления заказа наш менеджер свяжется с вами для согласования условий и сроков доставки.
- Оплата: Выберите удобный способ оплаты. Мы предлагаем несколько вариантов, включая безналичный расчет.
- Получение товара: После выполнения всех условий заказа, вы получите железобетонные изделия в назначенное время и по согласованному адресу. При получении подпишите акт приема-передачи.
Если у вас возникли вопросы на любом этапе покупки, не стесняйтесь обращаться к нашим менеджерам!
Оплата
Мы принимаем только безналичные платежи и работаем исключительно с юридическими лицами. Пожалуйста, ознакомьтесь с условиями оплаты ниже:
- Способ оплаты: Все расчеты производятся безналичным путем. Мы не принимаем наличные.
- Счет на оплату: После оформления заказа вам будет выставлен счет, который необходимо оплатить в срок, указанный в документе.
- Реквизиты: Все необходимые банковские реквизиты будут предоставлены в счете. Убедитесь, что все данные указаны правильно для успешного перевода.
- Подтверждение оплаты: После осуществления платежа отправьте нам подтверждение, чтобы мы могли оперативно обработать ваш заказ.
- Получение документов: После полной оплаты вы получите все необходимые документы, включая акт выполненных работ, товарные накладные и сертификаты на продукцию.
Мы работаем с НДС и предоставляем все необходимые сертификаты и документы. Все гарантии будут прописаны в договоре, что обеспечивает прозрачность и надежность сотрудничества.
Если у вас есть вопросы по поводу процесса оплаты, не стесняйтесь обращаться к нашим менеджерам за помощью!
Наша оперативность — ваше удобство. Мы гарантируем своевременную доставку железобетонных изделий, что является ключевым фактором для успешной реализации ваших строительных проектов. Доставка осуществляется прямо к вашему объекту с учетом всех стандартов качества.
    Основные условия доставки:
    • Выбор тарифа: Вы можете выбрать способ расчета стоимости доставки — почасовой или по зонам.
    • Согласование: Менеджер свяжется с вами для уточнения деталей после оформления заказа.
    • Время на погрузку: Комплектация товара занимает от 1 до 3 дней в зависимости от объема.
    • Акт приема-передачи: Продукция передается по акту приема-передачи.
    Тарифы на доставку:
    Цены варьируются в зависимости от расстояния и региона. Все тарифы включают НДС. При неблагоприятных погодных условиях возможны небольшие изменения в стоимости.
    География доставки:
    Мы работаем по всей территории РФ и имеем 12 офисов и производств, чтобы обеспечить удобные условия для доставки.
Для точного расчета стоимости доставки обращайтесь к нашим менеджерам!


 
						 
						 
						 
						 
						 
						 
							 
							 
							 
							 
							